Progettazione cucine e arredamento su misura e design d'interni a Lecce e provincia

Cucine con isola

Libertà visiva e di movimento
Le cucine con isola richiedono spazi molto ampi. Nel caso l’isola integri anche lavello e piano cottura, necessitano di un progetto estremamente particolareggiato, sia elettrico, che idraulico.


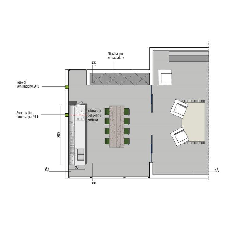
Cucine con penisola

Un ponte tra cucina e living
La penisola è un elemento che articola lo spazio funzionalmente - potendo essere piano di lavoro, contenendo lavello e/o piano cottura, o bancone colazione – e diventa elemento di collegamento tra la cucina ed il living.


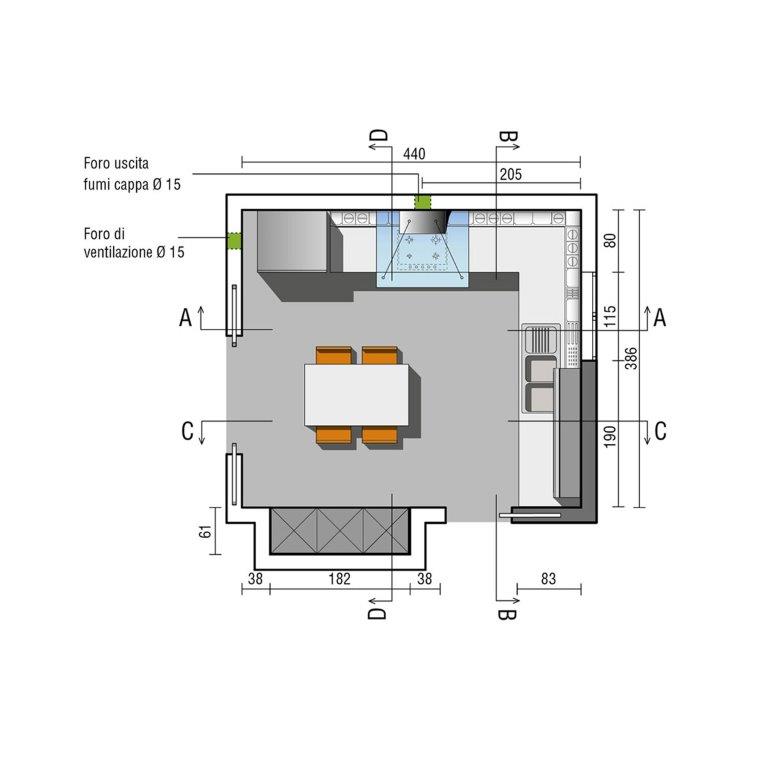
Cucine ad angolo

Contiguità per facilitare le funzioni
Gli elementi occupano due lati contigui: lavello, piano cottura e frigorifero saranno piuttosto vicini per ridurre le distanze, rendendo più agevoli le attività e migliorando il benessere durante la preparazione.


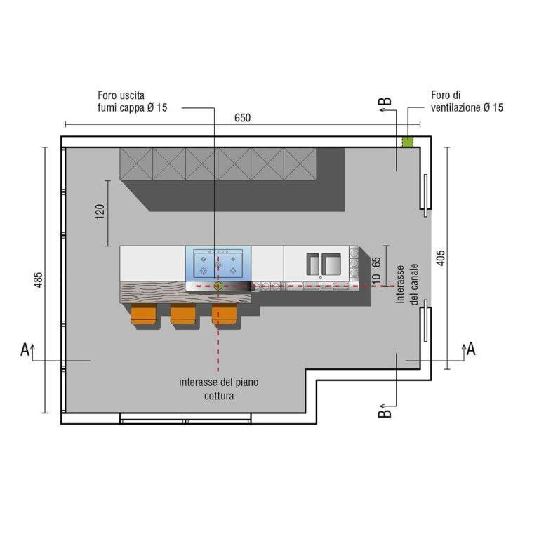
Cucine lineari

Armonia negli ambienti più difficili
Le cucine lineari sono una efficiente soluzione anche per ambienti lunghi e stretti. Gli elementi d’arredo vengono disposti lungo una parete e viene lasciato libero uno spazio sufficiente per muoversi.

GeoArk è un contenitore di creazioni ed idee che si occupa prevalentemente architettura d’interni, progettazione e fornitura delle migliori proposte d’arredamento per abitazioni, uffici, strutture commerciali e ricettive, outdoor e contract.

Lo stile che caratterizza GeoArk è fondato su una continua evoluzione di contenuti ed emozioni creative che applichiamo a qualunque progetto.

Progettazione e consulenza personalizzata

GeoArk sviluppa progetti su misura affiancando il cliente privato e professionale in tutte le fasi, dalla progettazione alla realizzazione.

Su misura

GeoArk progetta e realizza tutto su misura e si avvale di professionisti del settore per la migliore qualità dei prodotti.

Fornitura chiavi in mano

La missione di GeoArk è di diventare l’unico referente per tutte le fasi del progetto, dalla consulenza iniziale fino alla realizzazione della vostra casa. Oltre alla progettazione, al preventivo e alla fornitura di arredi, il chiavi in mano include tutte le opere edili (cartongesso, impianti, pavimentazione) ed il montaggio di arredi. Da sempre GeoArk si avvale di professionalità altamente specializzate con il cui contributo si può far fronte ad ogni vostra esigenza.

Contract

Geoark si occupa anche di contract. Fornisce, su commissione diretta o gara d'appalto, tutti i prodotti progettati ad hoc e relativi servizi di trasporto e montaggio.

Stampa Email